House Plan 85392 - with 3545 Sq Ft, 4 Bed, 2 Bath, 1 Half Bath | COOLhouseplans.com

15% Off Merry Christmas Sale! Promo Code CHRISTMAS at Checkout

Call 800-482-0464
House Plan 85392 with 4 Beds, 3 Baths, 3 Car Garage Elevation

Elevation

Photographs may show modified designs.
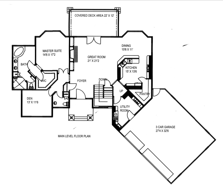
House Plan 85392 with 4 Beds, 3 Baths, 3 Car Garage Level One

Level One

House Plan 85392 with 4 Beds, 3 Baths, 3 Car Garage Lower Level

Lower Level

House Plan 85392 with 4 Beds, 3 Baths, 3 Car Garage Rear Elevation

Rear Elevation

Photographs may show modified designs. Image quality may be compromised.

House Plans by this Designer

Plan Number 87205 - 2281 Square Feet
Plan Number 87204 - 2750 Square Feet
Plan Number 87203 - 3863 Square Feet
Plan Number 87202 - 3430 Square Feet
Plan Number 87201 - 1512 Square Feet
Plan Number 87200 - 3646 Square Feet
Plan Number 87199 - 2400 Square Feet
Plan Number 87198 - 2652 Square Feet
Plan Number 87197 - 2281 Square Feet
See More Plans by this Designer