Plan Number 41843 | Order Code: 00WEB | COOLhouseplans.com | 800-482-0464
Family Home Plans - Better Living By Good Design

Plan Number 41843 | Order Code: 00WEB

COOLhouseplans.com
800-482-0464

Plan Number: 41843

  • 3172 Total Living Area
  • 1920 Main Level
  • 1252 Upper Level
  • 3 Bedrooms
  • 2 Full Bath(s)
  • 1 Half Bath(s)
  • 2 Car Garage
  • 88'0 Wide x 70'0 Deep
Available Foundation Types:
  • Basement - * $395.00
  • Crawlspace - * $295.00
  • Slab

Order Code: 00WEB

  • PDF File: $1,450.00
  • 5 Sets plus PDF File: $1,800.00
  • CAD File: $2,700.00
  • CAD File: $3,250.00
    Unlimited Build License issued on CAD File orders.
  • Right Reading (True) Reverse: $275.00
    All sets will be Readable Reverse copies. Turn around time is usually 3 to 5 business days.
  • Additional Sets: $50.00

Plan Number 41843 | Order Code: 00WEB | Elevation

Reverse Plan


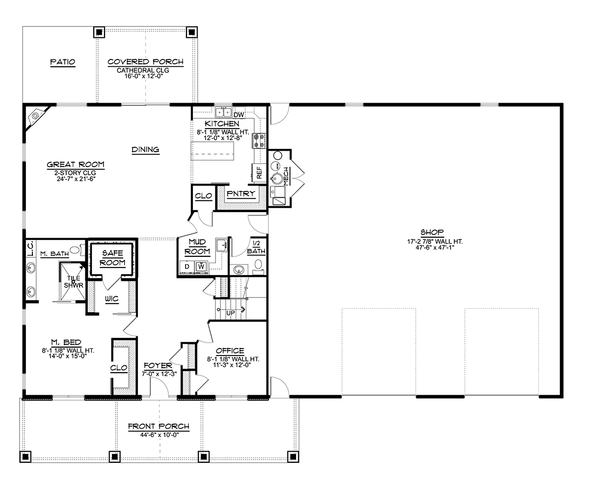
Plan Number 41843 | Order Code: 00WEB | First Floor Plan

Reverse Plan


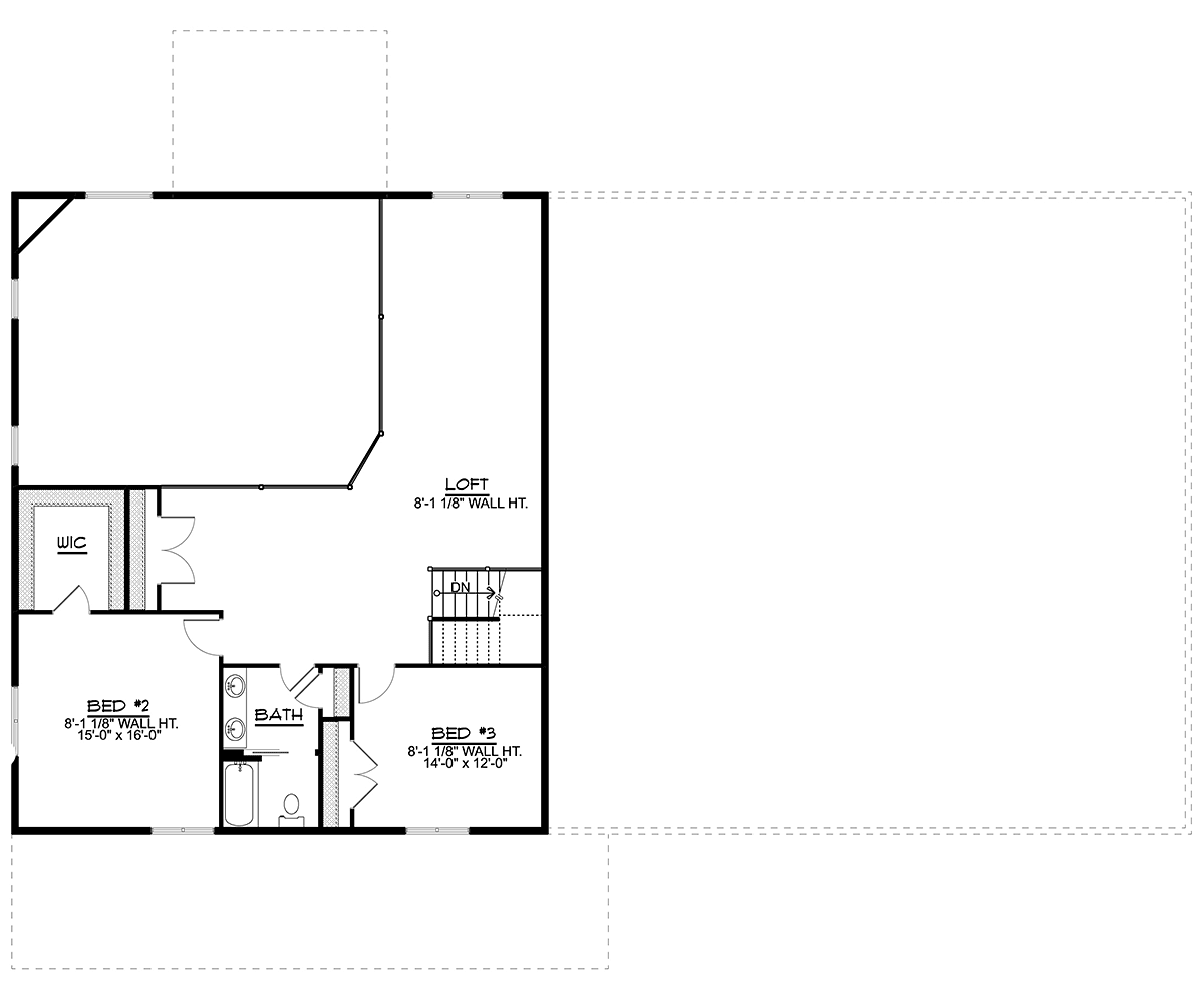
Plan Number 41843 | Order Code: 00WEB | Second Floor Plan

Reverse Plan


Plan Number 41843 | Order Code: 00WEB | Rear Elevation

Plan Number 41843 Specifications:

  • Total Living Area: 3172
  • Main Living Area: 1920
  • Upper Living Area: 1252
  • Garage Area: 2304
  • Garage Type: Attached
  • Garage Bays: 2
  • House Width: 88'0
  • House Depth: 70'0
  • Number of Stories: 2
  • Bedrooms: 3
  • Full Baths: 2
  • Half Baths: 1
  • Max Ridge Height: 29'9 from Front Door Floor Level
  • Primary Roof Pitch: 6:12
  • Roof Load: 30 psf
  • Roof Framing: Truss
  • Porch: 684 sq ft
  • Deck: 154 sq ft
  • FirePlace: Yes
  • 1st Floor Master: Yes
  • Main Ceiling Height: 8'
  • Upper Ceiling Height: 8'

Available Foundation Types:

  • Basement - $395.00 Total Living Area may increase with Basement Foundation option - please call to confirm before ordering.
  • Crawlspace - $295.00
  • Slab

Plan Number 41843 Plan Pricing:

  • PDF File: $1,450.00
  • 5 Sets plus PDF File: $1,800.00
  • PDF File Unlimited Build: $2,050.00
  • CAD File: $2,700.00
  • CAD File: $3,250.00
    Unlimited Build License issued on CAD File orders.
  • Right Reading (True) Reverse: $275.00
    All sets will be Readable Reverse copies. Turn around time is usually 3 to 5 business days.
  • Additional Sets: $50.00

Plan Number 41843 | Order Code: 00WEB | Specifications and Pricing
COOLhouseplans.com
800-482-0464

Plan Modifications

Receive a FREE modification estimate.

Plan modification is a way of turning a stock plan into your unique custom plan. It's still just a small fraction of the price you would pay to create a home plan from scratch. We believe that modification estimates should be FREE!

We provide a modification service so that you can customize your new home plan to fit your budget and lifestyle.

Email Designer This is the best and quickest way to get a modification quote!

Please include your preferred Foundation Type and a Specific List of Changes. You can also attach a Sketch of Changes.

It's as simple as that!

Plan Number 41843 | Order Code: 00WEB | Specifications and Pricing
COOLhouseplans.com
800-482-0464

COPYRIGHT NOTICE. It is illegal to build this plan without a legally obtained set of plans. It is illegal to copy or redraw these plans. Violation of U.S. copyright laws are punishable with fines of up to $200,000. After the purchase of plans, changes may be made by a qualified professional.