

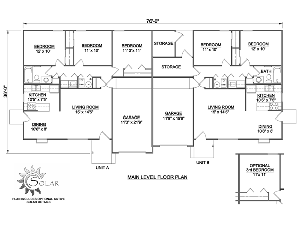
2nd unit is 841 sq ft. Unit 1 features three bedrooms and one full bath. Unit 2 features two bedrooms and one full bath. the centrally located garages create a sense of privacy for each unit. The large living rom flows into the seperate dining area. the kitchen with snack bar opens into the dining area. Laundry closet is conveniently located in the bedroom area. Large bedrooms with aple closet space
COPYRIGHT NOTICE. It is illegal to build this plan without a legally obtained set of plans. It is illegal to copy or redraw these plans. Violation of U.S. copyright laws are punishable with fines of up to $200,000. After the purchase of plans, changes may be made by a qualified professional.